m.Q.Qarayev . heyet evi satilir . 4 sotda 4 otaqli kupcali

255000 m

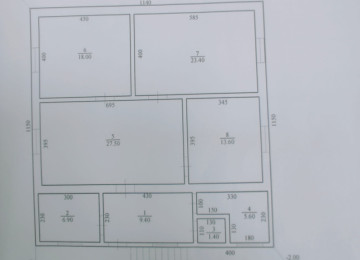
Qara Qarayev metrosu . Ayla Şadlıq Sarayının yanı . İpoteka şərtlərinə uyğun kursulu həyət evi satılır . 4 yashayish +3 komekci otaqlari var . Təmiri əla . Hamam-tualeti ayrı ayrı . Həyətində də hamam-tualeti var . 3-4 maşınlıq həyəti var . Torpağın və evin Çıxarışı və Texniki pasportu var . Torpağın ümumi sahəsi 4 sotdur. Ev 11.50 / 11.40 da tikilib . Su qaz işıq daimi . Kombi sistemi var . Domofon quraşdırılıb . Həyətində bir neçə meyvə ağacları var . Hər 4 otağın , hamam tualetin , mətbəxin və koridorun həyətə pəncərəsi var . Şəkillər həmin həyət evinə aiddir . 12 nömrəli marşrut avtobusu həyət evinin yaxınlıqdan keçir . Ayla shadliq sarayindan ve avtobus dayanacağından həyət evinə 3-4 dəqiqəlik piyada məsafə var . Sənədlər tam qaydasındadır . Qiyməti 255.000 manat . Real alıcıya həyət evinə baxdıqdan sonra Mülk sahibi tərəfindən qiymətdə endirim olunacaq .



Diqqətli olun! Məhsula (əmlaka) yerində baxmadan heç vaxt pul (beh, avans) göndərməyin.

Hafiz Aliyev Hafiz Aliyev bütün elanlarına bax

  • March 21, 2025
  • 151
  • 465285
  • Sadə hesab 👍
  • Elanı paylaş:

Oxşar elanlar

Paket kupçalı şəkildə gördüyünüz içi tam dolu bütün

57000 m

Masazirda heyet evi satılır

Paket kupçalı şəkildə gördüyünüz içi tam dolu bütün

12 sotdu.senet belediyyedi.teze heyet deyl 150 illik

29999 m

turkanda bag evi

12 sotdu.senet belediyyedi.teze heyet deyl 150 illik

Masazlr qesebesi yeri super 569 marsrtun yolun usdu 2 otaq

30000 m

2 otaq heyet evi satllr

Masazlr qesebesi yeri super 569 marsrtun yolun usdu 2 otaq

Pirallahı rayonu, Pirallahı qəsəbəsi, Villalar sırasında,

230000 m

Pirallahi rayonunda 5 otaqli heyet evi

Pirallahı rayonu, Pirallahı qəsəbəsi, Villalar sırasında,

Xlrdalan Milyaner Mehelesi 3 otaq heyet evi tecli satllr

65000 m

3 otaq heyet evi esyanan satllr

Xlrdalan Milyaner Mehelesi 3 otaq heyet evi tecli satllr

Xlrdalan UCUR Market ve Araz Marketin yaxlql cut dasdan

53000 m

2 otaq heyet evi satllr

Xlrdalan UCUR Market ve Araz Marketin yaxlql cut dasdan

Nardaran bağlar massivində 13 sot sənədi çıxarış torpağ

10000 m

Nardaranda bağlarda seea breeze 3 km məs

Nardaran bağlar massivində 13 sot sənədi çıxarış torpağ

Xlrdalan Ucr Marketin yani kupcall heyet evi satllr 120 kv

56000 m

3 otaq heyet evi satllr

Xlrdalan Ucr Marketin yani kupcall heyet evi satllr 120 kv

Xlrdalada 115 Abdobusun Son dayanacaql 3 otaq heyet evi tek

50000 m

3 otaq heyet evi kirditnen satllr

Xlrdalada 115 Abdobusun Son dayanacaql 3 otaq heyet evi tek

Xlrdalada 115 Abdobusun Son dayanacaql 3 otaq heyet evi tek

50000 m

3 otaq heyet evi satllr kirditnen

Xlrdalada 115 Abdobusun Son dayanacaql 3 otaq heyet evi tek

Ev maştağda yerləşir Neptun marketin yaxnliqi 12 sot torpaq

90000 m

Maştağada ev 90000

Ev maştağda yerləşir Neptun marketin yaxnliqi 12 sot torpaq

Dəyərli müşdərilər sizlərə təmiz havası və dəniz mənzərəsi

25000 m

kreditlə evlər

Dəyərli müşdərilər sizlərə təmiz havası və dəniz mənzərəsi